Skip to main content

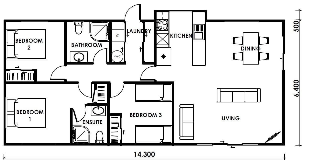
SEAGULL 90

3 Bedroom / 2 Bathroom

92sqm

Our most popular 3 bedroom design!

Can be mirrored/reversed to best suit your location.

SEAVIEW 80

3 Bedroom / 1 Bathroom

81sqm

Open plan living with no space going to waste.

SEAVIEW 100

3 Bedroom / 2 Bathroom

103sqm

A modern, stylish house with a spacious kitchen/dining/living area in the centre, making it an entertainer's dream home.

 

This product has been added to your cart

CHECKOUT