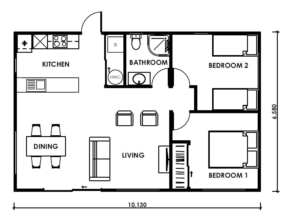
HIDEAWAY 65
2 Bedroom / 1 Bathroom
65sqm
The Hideaway is a smart and effective home design.
The second bedroom presents versatile opportunities; it can serve as an additional bedroom, guest room, hobby room, or office, the choice is yours!
2 Bedroom / 1 Bathroom
65sqm
The Hideaway is a smart and effective home design.
The second bedroom presents versatile opportunities; it can serve as an additional bedroom, guest room, hobby room, or office, the choice is yours!